مدل های پمپ استخری لئو
پمپ استخری لئو در شش مدل تولید شده و در بازار ایران توسط نمایندگی ها به بازار عرضه می شود. این پمپ طرفداران زیادی برای استفاده در استخر ها و باغ ها دارد. از XKP554 تا XKP2204 مدل هایی است که پمپ استخری لئو دارد و از توان 600 وات تا 2200 وات به صورت تکفاز موجود است. هد ماکزیمم در پمپ های استخری لیو برای XKP2204 که بزرگترین سایز آن است، 17.8 متر می باشد که در دبی 3 متر مکعب در ساعت این هد را تولید میکند. XKP904 و XKP1104 که به ترتیب 900 و 1100 وات هستند، بیشترین مصرف را داشته و طرفداران زیادی دارد. جدول زیر مشخصات مربوط به هد و دبی پمپ های استخری لئو را نمایش می دهد.

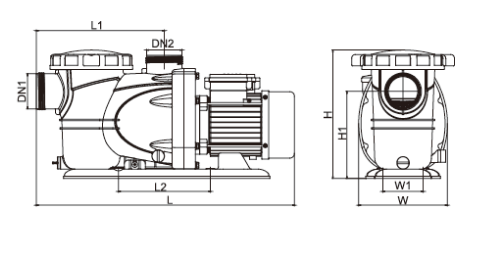
مشخصات فنی پمپ استخری لئو
به لحاظ ابعاد و اندازه، پمپ های استخری لئو ماکزیمم 583 میلیمتر طول دارد و در تمام کدها 285 میلیمتر ارتفاع دارد. قطر دهانه ورودی و خروجی پمپ های استخری یکسان است و در این کدها برابر با لوله 63 می باشد. از آنجایی که در بیشتر استخرها تاسیسات بر اساس قطر لوله سایز 63 که همان لوله 2.5 اینچ است ساخته می شود، این پمپ برای این کاربری بسیار مناسب است. در زیر مشخصات دقیق ابعادی پمپ استخری لئو نمایش داده شده است.


اما چیزی که برای بسیاری از مشتریان و تاسیسات کاران مهم است، بررسی نمودارهای هد و دبی است که اساس تصمیم گیری برای خرید اینترنتی پمپ استخری به شمار می شود. برای خرید آنلاین پمپ استخری حتماً از مشاوره رایگان همکاران ما در سایت کالا صنعتی استفاده کرده و بهترین انتخاب را خواهید داشت.
نمودار هد و دبی پمپ استخری لئو
نمودار زیر نمایشگر مقدار هد و دبی در پمپ های استخری است که در مدل های مختلف آن ترسیم شده است. اگر به دنبال بیشترین راندمان هستید، پمپی را انتخاب کنید که در میانه نمودار هد و دبی مقدار مورد نظر شما را تامین کند. برای استفاده از نمودار هد و دبی پمپ استخری لئو ابتدا مقدار آب مورد نیاز را بر روی نمودار افقی تعیین نمایید که همان دبی است و از ستون قائم هد یا همان ارتفاع کاری مورد نیاز خود را انتخاب نمایید. جایی که این دو خط هم را قطع کند نقطه کاری شماست. حال نزدیک ترین نمودار بالای این خط همان کدی است که شما نیاز دارید. برای کسب اطلاعات بیشتر و دریافت مشاوره میتوانید با مشاورین کالا صنعتی، نمایندگی پمپ لئو در تماس باشید.

مزایا پمپ استخری لیو
مزیت اصلی پمپ های استخری لئو دارا بودن استرینر سرخود است که باعث می شود با هزینه کمتر، کارایی بالاتری را داشته باشید. بدیهی است که استفاده از پمپ استخر لیو علاوه بر کارایی بالا، این امکان را به شمار خواهد داد که بهترین خدمات و گارانتی با ارزش دریافت نمایید. کالا صنعتی بزرگترین تامین کننده کالای صنعتی به شمار می رود که این پمپ را با قیمت بسیار مناسب به شما تحویل داده و به عنوان یکی از بهترین شرکت های تامین کننده پمپ استخر به شمار می رود.